خانه > خدمات > خدمات اداری > انجام خدمات ترسیم نقشه

انجام خدمات ترسیم نقشه

شماره آگهی : 64834
انجام خدمات ترسیم نقشه
رایگان
بیشتر...

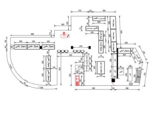
1- طراحی و ترسیم نقشه ساختمان در محیط اتوکد دوبعدی
2- طراحی پلان ساختمان مسکونی و تهیه نقشه فاز 1 معماری و نقشه اجرایی.
3- ترسیم نقشه اتود و دستی به نقشه های اتوکد.
4- ترسیم نقشه صنعتی بصورت دوبعدی و سه بعدی.
5- تهیه نقشه ازبیلت معماری

خوب است بدانید:

کاربر ، از 2703 روز پیش عضو سایت ثبت ها میباشد.


این آگهی را در اولین بار در 18th Nov 2025 ثبت کرده که در مجموع 0 بازدید داشته و در 18th Nov 2025 بروزرسانی شده است.


اطلاعات تماس
عبارات کلیدی
تلفن 09307269598
شماره واتس اپ چت واتس‌اَپ
آدرس تهران
اطلاعات فوق را با اسکن کد زیر، روی موبایل خود دریافت کنید
کی آر کد

ادامه آگهی ها

مشاوره مالیاتی رایگان، خدمات حسابداری

مشاوره مالیاتی رایگان، خدمات حسابداری

ساسان

تهیه و تنظیم اظهارنامه عملکرد و ارزش افزوده شرکتها اشخاص حقیقی و کسبه و اصناف انجام خدمات حسابداری و مالی کلیه شرکتها و اصناف و کسبه مشاوره مالی و مشاوره مالیاتی تنظیم دفاعیه و لوایح مالیاتی استقر...

امروز
09134007545
مهندس مهراد قدوسی

مهندس مهراد قدوسی

مهراد قدوسی

محاسبه ، نظارت ، اجرا طراحی و محاسبه کلیه نقشه های ساختمانی و صنعتی ناظر نظام مهندسی مجری ذیصلاح نظام مهندسی پایه دو نظام مهندسی

امروز
09104010699
مترجم زبان سوئدی

مترجم زبان سوئدی

وحید صاحب نسق

مترجم زبان سوئدی ترجمه سوئدی به فارسی و بلعکس وحید صاحب نسق تماس همچنین از طریق آپ

امروز
09123035183
انجام خدمات ترسیم نقشه

انجام خدمات ترسیم نقشه

اتوکد

1- طراحی و ترسیم نقشه ساختمان در محیط اتوکد دوبعدی 2- طراحی پلان ساختمان مسکونی و تهیه نقشه فاز 1 معماری و نقشه اجرایی. 3- ترسیم نقشه اتود و دستی به نقشه های اتوکد. 4- ترسیم نقشه صنعتی بصورت دوبعدی...

امروز
09307269598
فیلتر برند آمازون انگلیس (Amazon)

فیلتر برند آمازون انگلیس (Amazon)

محمود ابدی

فیلتر برند آمازون انگلیس (Amazon) به استحضار می رساند شرکت آرامین پیشرو فیلتر با تکیه بر دانش آکادمیک و تجربه چند ساله کارشناسان داخلی و خارجی با دفاتر دایر در لندن و دوبی و همکاری مستقیم با چندی...

امروز
09227138054
کابینت ساز و دکوراسیون داخلی

کابینت ساز و دکوراسیون داخلی

علی حاجیزاده

انجام به روز ترین طرح های کابینت و دکوراسیون توسط تیم اجرایی مجرب با قیمت کارخانه اجرای کلیه کارهای چوبی از جمله کمد دیواری ، میزtv، دکور مغازه، هوشمندسازی های نوری و بازسازی منزل توسط تیم اجرایی...

امروز
09193952363
میلگرد بستر و والپست نوین

میلگرد بستر و والپست نوین

علیرضا نیرومند

طراحی، فروش و اجرای میلگرد بستر و والپست نوین گروه ساختمانی نیرانی نمایندگی میلگرد بستر فراسازان آویژه در استان گیلان مهندس علیرصا نیرومند تنها میلگرد بستر دارای گواهینامه فنی مرکز تحقیقات راه و مس...

امروز
09118816366
ترخیص کار گمرک ، کارگزار رسمی گمرک

ترخیص کار گمرک ، کارگزار رسمی گمرک

شرکت همیار ترخیص ساعی

ترخیص کار گمرک کارگزار رسمی گمرک شرکت همیار ترخیص ساعی (سهامی خاص) با داشتن بیش از بیست و پنج سال تجربه در انجام امور گمرکی ترخیص کالا از گمرکات تهران ؛ بندرعباس و بوشهر انجام امور صادرات کالا انج...

امروز
آسفالتکاری , ایزوگام قیرگونی در تهران و  غرب تهران کرج در تهران

آسفالتکاری , ایزوگام قیرگونی در تهران و غرب تهران کرج در تهران

الله وردی فرج الهی

پیمانکاری برادران فرج الهی با بیش از بیست سال سابقه کار در امور عایق کاری و آسفالت آماده خدمت رسانی به همشهریان عزیز میباشد . آسفالت درب منازل نوار حفارهای آب , برق , گاز , مخابرات آسفالت پارکینگ ...

امروز
09125856884
گونی پلاستیکی و لمینتی ، پاکت و کیسه کامپوزیت

گونی پلاستیکی و لمینتی ، پاکت و کیسه کامپوزیت

رضا دنیادیدگان

گونی پلاستیکی گونی هایی هستند که از جنس پلاستیک تولید می شوند. عموما برای ساخت این گونی ها از رزین پلی پروپیلن یا اتیلن استفاده می کنند. این گونی ها برای بسته بندی کالاهای مختلف مانند آرد، قند، شکر...

امروز
پارتیشن اداری دلتا

پارتیشن اداری دلتا

پارتیشن اداری دلتا

مبلمان اداری دلتا تولید کننده پارتیشن و مبلمان اداری با بیش از 20 سال تجربه کاری در این زمینه تولید کننده قیمت مناسبتر به دلیل حذف واسطهها کیفیت تضمینشده با استفاده از متریال مرغوب طراحی اختصاصی...

امروز
09123762330
اجرای تمام مدل های  کابینت

اجرای تمام مدل های کابینت

ایمان دولت آبادی

اجراع انواع کابینت با قیمت مناسب و کیفیت خوب نقد و اقساط بودن برای زیبایی منزل خود با ما همراه باشید کارشناسی رایگان وطراحی درجه یک 16 سال سابقه کار برای اطلاعات بیشتر تماس بگیرید.

امروز
09122687632